お知らせ
【震災復興本部だより】大本山總持寺祖院 復興に向けての歩み④
2026年3月13日
◆復興に向けての歩み(令和8年2月)
2月19日に復興事業関連工事2件についての入札が祖院香積台で執行されました。
入札執行者として復興本部統監の渡辺本山監院、立会人として副統監の勝田祖院監院、輪島市の木下教育部長、宮下営繕部長、執行事務として総務企画兼財務部長の髙島祖院副監院、木場財務主任の6名が出席して行われました。
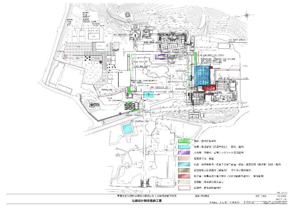
今回は「重要文化財 總持寺祖院大祖堂ほか16棟保存修理事業 仏殿ほか解体格納工事」と「僧堂修理工事」の2件についての指名競争入札(郵送による)になります。
これは1月9日に開催された第4回工事請負等業者選考委員会の決定に基づき、指名業者(仏殿10者、僧堂5者)に「指名競争入札執行通知書」を設計図書等とともに送付します。これを受けて指名業者が見積書を作成し入札額を決めて指定日時までに直接持参するか、証明郵便で届けます。この入札書を当日開札し、予め入札執行者が設定した予定価格の制限の範囲内で最低の価格をもって落札者を決定します。
「重要文化財 總持寺祖院大祖堂ほか16棟保存修理事業 仏殿ほか解体格納工事」においては10者のうち8者が入札辞退で2者での入札となり、開札の結果、松井建設株式会社北陸支店が139,150千円で落札となりました。その後の2月26日、祖院において渡辺統監と松井建設株式会社塚本北陸支店長の間で正式に契約が取り交わされました。
一方の「僧堂修理工事」については、5者のうち4者から入札辞退の届け出がされ、1者のみの入札となり、復興本部競争入札心得の規定により入札が取りやめ(不調)となりました。この結果を受けて今後、設計者と応札者を交え復興本部契約規則に基づき、早期修復に向けて協議が進められます。
今回の入札で明らかになったのは、世界的な物価高や能登半島地震からの復旧復興工事の影響で施工業者も手が回らない状況にある事です。輪島市からの情報でも復興関連の多くの公共工事で入札不調が続いており、頭を悩ましていると聞きました。今後の復興工事においても今回のような厳しい状況が予想されます。復興本部としてもこれらの情勢を注視しながら、復興事業に大幅な遅れが生じないよう業務を進めていかなければなりません。
