お知らせ
【震災復興本部だより】大本山總持寺祖院 復興に向けての歩み②
2026年3月13日
◆復興に向けての歩み(令和7年7月~令和7年12月)
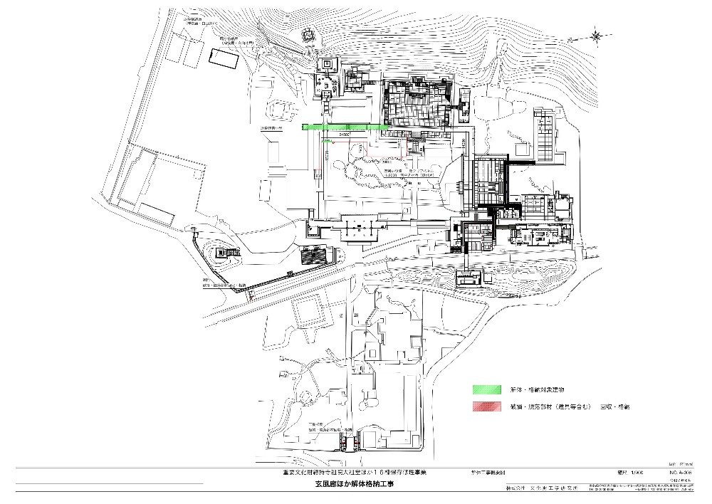
「重要文化財總持寺祖院大祖堂ほか16棟保存修理事業」のうち、7月9日に工事契約を締結しました「玄風廊ほか解体格納工事」ですが、今秋から玄風廊の解体が始まりました。
この工事は今後進められ大祖堂の保存修理工事や、地震で大規模な地滑りを起こした大祖堂や伝燈院、慈雲閣裏側の法面復旧工事を行うにあたり、作業用通路を確保する目的で玄風廊の南北部分を一旦解体するものです。一言で解体と言いましても、文化財の解体工事は大変緻密な作業が要求されます。まず瓦を丁寧に一枚ずつ剥がしていき、これが終わると建屋本体の解体です。解体前に部材の一つ一つに小さな木札を貼り付け番号や位置情報を記し、図面等に記録することで整理や識別を容易にします。これが終わると漸く解体が始まります。もちろん重機等は使用することはなく、手作業で建屋を分解していきます。分解した部材は、先に建設した仮設の格納庫に整理して収納され、その際にも収納一覧表が作成されます。収納された部材は、修復される際に一つ一つ検査を行い、①そのまま使用できるもの、②修復して使用できるもの、③損傷が激しく取り替えが必要なものに分類され、保存修理が行われます。
地震で倒壊した禅悦廊と白山井戸(国登録有形文化財)は、同様の方法で既に解体格納工事が終了しております。回廊においては、損傷が激しい場合や大きな伽藍の本体工事に支障が出る場合に一旦解体されます。今後、仏殿と大祖堂を結ぶ慧心廊の一部解体が予定されています。
